本次辦公室設計師在設計的時候,打破傳統辦公室的設計思路,在空間中融入環保與健康的設計理念,同時整個空間給人一種穿越現實與虛擬的感覺,在空間中營造科技感與未來感。

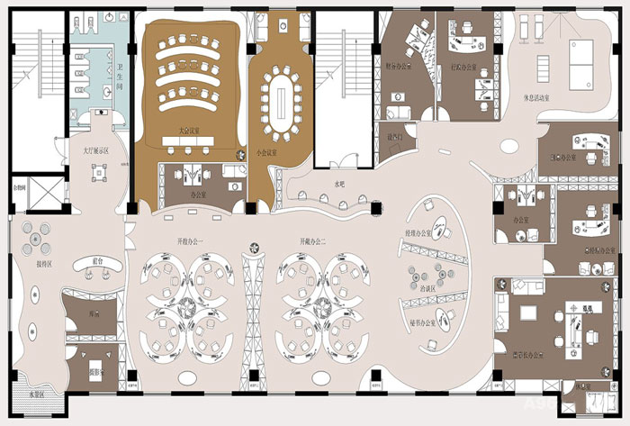
平面方案的設計:設計師在設計的時候,基于動線的合理與空間的整體開發,在設計的時候為動線加入了新的屬性,讓動線可以自主的吸引客戶,讓動線的作用發揮到最大。

前臺的設計:設計師在設計的時候,將前臺設置在接待區域之后,讓客戶在跨過接待區域的同時對企業有一個初步的認識,綠植墻的設計設計師希望將環保、健康、低碳融入空間。

動線的設計:客戶跨過前臺,經過動線的指引進入室內,動線的設計中,設計師以鮮明為主要設計原則,在滿足企業的基本需求之后,設計師為動線加入了指引的屬性,雖是一個簡單的設計,但是卻人性化的賦予了動線全新的職責。

辦公區域的設計:設計師在設計的時候,利用硬裝將每個辦公區域設計為圓形,一個部門被分散在數個圓形內,這樣的設計使空間如流水般靈動、自然,在加上米黃色、白色的點綴,空間更顯溫馨、整潔同時又不失干練,極富人情味兒。

培訓區域的設計:四周的隆起一方面有拱衛中央的寓意,另一方面人為的為空間增加了承載能力,由于空間的承載能力有限,若是以為的利用辦公桌則會使空間顯得過于擁擠,再次情況下設計師將四周做為備用椅子,新穎又極具創意。

休息區域的設計:設計師在設計的時候,以高低來增加空間的承載能力與空間的魅力,高低之間的自然落差,一方面表現出空間落差的魅力,另一方面這樣的空間不會顯得局促與緊張,為員工打造愜意、自然的減壓空間。

總經理辦公室的設計:設計師在設計的時候,在空間中配置了新穎的電話類型沙發、創意性辦公桌,造型與收納相結合的展示柜,各個空間相互組合打造一個時尚、創新的空間,在同時表現了總經理個人的品味與檔次。
本次辦公室方案設計解析到此結束,希望可過小編的介紹可以為需要的朋友們帶來一絲靈感與創意,關注更多的辦公室設計方案,請持續關注嵐禾辦公空間設計。