本次為娛樂公司辦公室設計方案,企業是一家迅速成長的年輕公司,為客戶提供訂閱式的娛樂服務,設計師在辦公室設計中,希望為企業打造充滿活力和創造力的辦公空間,設計師將明艷的色彩、和白色表面加以巧妙運用,既節省了資金,同時也達到了原有的效果。

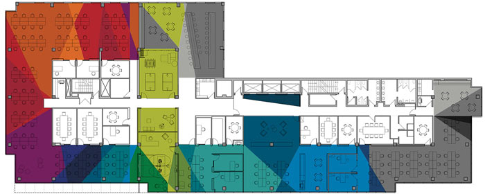
娛樂公司辦公室設計平面:通過平面圖可以看出,辦公區域在外,使用空間在內,辦公空間在外可以保證采光,使用空間在內保證空間的安靜。

娛樂公司辦公室進門區設計:進門區設計師采用角度的變化,來做為設計的開端,夾角由窄到寬、方向由遠及近,表示著企業的路越走越寬,企業越做越大,企業與客戶之間的距離由遠及近。

娛樂公司辦公室過道設計:過道由白色構成,給人以視覺上的由遠及近,白色做為百搭色,在這里得到了很好的證明,每個空間與過道相連,顏色各異,讓人不會出現視覺疲勞。

娛樂公司辦公室設計:黃色有著太陽般的光輝,它燦爛、輝煌又象征著照亮黑暗的智慧之光,它讓空間充滿希望和活力,設計師希望給人以輕快的感覺,以此拉近彼此之間的關系。

娛樂公司辦公室走廊設計:我們常見的走廊都是一種顏色到底,但設計師不需要如此,設計師為每一段都制定了屬于自己的色彩,設計師希望隨著色彩的變化,給人一種不同的視覺感受。

娛樂公司辦公室動線設計:顏色本是自然界中客觀存在的,由此可見顏色存在著某些自然的屬性,設計師希望從顏色之間的轉換,讓人直觀的區別各個不同的空間。

娛樂公司辦公室娛樂區設計:隨著時代的發展,設計也發生了翻天覆地的變化,設計理念也同樣如此,乒乓球不僅可以開發智力,同樣可以鍛煉身體,智力與體力是人的根基所在。

娛樂公司辦公室交流區設計:此處可以作為會議室、交流區、洽談區存在,此處與乒乓球區相鄰,當遇到困難的時候,可以去打打乒乓球,讓自己放松下來,這樣有利于問題的解決。

娛樂公司辦公室桌椅設計:若不是黑色椅子擺放在哪里,我們或許根本發現不了這里有會議桌,設計師這樣做一來是為了視覺上的感受,二來是希望視覺與使用可以完美契合。

娛樂公司辦公室色彩設計:從此處可以看到各種不同的色彩,白色包容了所有的色彩,這里也展現了企業包容的企業理念,正所謂海納百川,有容乃大,這也是企業理念的展示寫照。

娛樂公司辦公室踢腳線設計:色彩多了需要注意的就是空間的轉換,白色做為基本判斷色,在劃分空間的同時,也在時刻提醒大家每個空間的邊界,設計、視覺、使用完美結合。

娛樂公司辦公室辦公區設計:白色的頂和墻面,可以很好的保留采光,光是人生存不可或缺的重要資源,設計師希望辦公也同樣如此,開放式的辦公空間加上采光,讓空間自由有活力。

娛樂公司辦公室地毯設計:有光所以有了色彩,設計師在光照強烈的辦公空間,采用了各種各樣的地毯,以此吸附光的強度,讓光變的柔和,同時空間在色彩與光的搭配下,變得更加美麗。

娛樂公司辦公室洽談區設計:洽談區位于辦公區域的內側,這里有沙發、桌椅,最重要的是此處的風景極好,在這里洽談、交流也不失為一種享受,設計師希望通過設計讓人喜歡思考、愛上思考。
本次娛樂公司辦公室設計方案講解到此結束,在本次辦公室設計中,設計師為空間打造了,具有現代感的開放式辦公室設計方案,將明艷的色彩和白色表面加以巧妙的運用。