本次為小型辦公室改造設計方案,在辦公室改造過程中,設計師基于安全、成本等多方面的考慮,盡量減少對原有建筑的拆改,通過開放的布局和集約的尺度,滿足多元化的使用需求,在設計中也盡量在原有的基礎之上進行升級與優化,在保證成本的前提之下,貼合空間原本的設計。

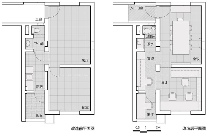
小型辦公室設計平面圖:通過改造前和改造后的平面圖比對,可以發現設計師基本上延續了原本的設計,只是對每一個空間進行了重新的定義,由此可見設計師的空間掌控能力。

小型辦公室入口設計:此處設計師加了一個藍色的金屬盒子,目的就是希望為進門留有余地,之所有留下余地,目的就是希望打造一個開放的入口空間和視覺標識。

小型辦公室會議室設計:會議區是進門后的第一個空間,將會議室安置在此處,也是希望會議室承擔起接待的任務,這也正是“麻雀雖小,五臟俱全”的奧秘所在。

小型辦公室文印區設計:此處是連接內部空間、外部空間、茶水區的過渡區域,也屬于空間的中心區域,設計師考慮到便捷性,故此將文印區安置在此處,既方便辦公,也方便會議使用。

小型辦公室過道設計:從文印區向內有辦公室、制作室,空間雖小但在設計師的設計手法之下,一切都顯得錯落有致,這也正是設計的魅力所在。

小型辦公室辦公區設計:定制的辦公桌左右完全與墻相契合,不多也不少,這也保證空間的整體性,綠植點綴在空間的各個角落,陽光透過窗戶照入室內,讓整個空間明亮、活潑。

小型辦公室辦公區設計:此處位于會議室的墻壁之后,上邊隔層儲物、下邊辦公區辦公,上邊隔層很好的阻隔燈光的直接照射,避免燈光對員工造成影響。

小型辦公室制作區設計:此處是一個獨立的空間,目的就是希望打造一個獨立的制作空間,以此滿足企業的制作需要,綠植的點綴讓空間有了一絲綠意。
本次小型辦公室改造設計方案介紹到此結束,在本次辦公室設計中,設計師的主要目的就是不增加額外的成本,設計師希望在原有基礎之上,加以改進與優化,以此在保證質量的同時也保證成本。