
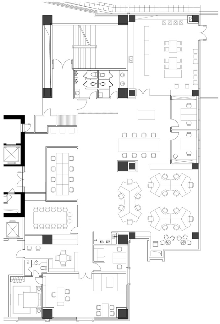
辦公室設計方案平面圖:通過平面圖可以看出整個空間是一個不規則的空間,在空間的設計中設計師著重強調動線的布置,一個暢通的動線系統是整個空間成功的前提,設計師的目的就是讓工作充滿樂趣。

辦公室進門區域設計:在辦公室設計中,設計師放棄了前臺的傳統設計,因為不規則的空間不容許前臺的出現,此處是客戶進入空間的第一個區域,設計師將此次設計成開放式的辦公格局,意在為空間的暢通打下基礎。

辦公室辦公區設計:人性化的辦公桌造型各不相同,這也是設計師根據空間的本身格局設計出來的,在設計師看來不規則的空間,就要采用不規則的設計,不規則對不規則可以讓設計更加貼近于建筑本身。

辦公室集中辦公區設計:此處使用120度角的辦公桌,每一位員工都有一個剛剛好的工作空間,6張桌子組合成一個不規則的圓,通道則是根據不規則而自然留下的空間,這樣也便于辦公之間的相互交流。

辦公室吧臺辦公區設計:此處是做為輔助性空間出現的,當設計師們沒有靈感的時候,可以自己一個人坐在此地構思自己的靈感,在設計師看來獨處是一個人靈感的重要來源,木飾面也可以有效的抵消周圍的壓力。

辦公室休閑區設計:此處設計師沒有采用過多的設計,而是充分尊重了員工的要求,設計師僅對墻面做了大致的設計,其他的都留給了員工自己去設計、去構思,去打造帶有企業特性的休息區域。

辦公室設計師講臺設計:此處是企業內部學習、交流的地方,在這樣每一個設計師搖身一變變成了演講家,各家演講自己的心得與收獲,彼此之間在溝通之中不斷地成長,這也是企業欣欣向榮的重要推動力。

辦公室閱讀室設計:此處擺放的是企業購買的各種新型的雜志與經典的書籍,目的就是供設計師們參考與學習,在這樣的環境下設計師得以不斷的成長,在這里設計師不斷的完善自己的思路,這也是企業做好、做大的驅動力。

辦公室會議室設計:潔白的空間貫穿整個空間,這樣的目的就是希望空間的阻礙減少到最小,在會議開展的時候大家可以各抒己見,在相互討論之中達到解決問題的終極目標。
本次設計公司辦公室設計方案講解到此結束,在本次辦公室設計中,設計師首先要做的就是保證空間的動線完整,這樣做的目的就是化解不規則的空間弊端,各個空間的結合部設計師也均采用開放式進行銜接,以此保證空間的暢通無阻。